About
2026 EXTREME Brazil Porto Alegre
2025 Winning The Mekel Prize
2025 EXTREME Lebanon
2025 Yasmeen Lari
2025 EXTREME Namibia
2024 EXTREME Ukraine
2024 EXTREME Turkey
2023 Ai Weiwei
2023 EXTREME Pakistan
2023 EXTREME Saba
2023 EXTREME Sint Maarten
2022 Shigeru Ban
2022 CARE Shelter Team workshop
2022 EXTREME CARE Azraq refugee camp
2022 EXTREME Sint Maarten
2021 EXTREME CARE Azraq refugee camp
2021 EXTREME Urban Heat Island
2020 EXTREME Congo
2020 EXTREME Sint Maarten
2019 EXTREME Sint Maarten
2018 EXTREME Hyperloop
2017 EXTREME Maldives
Contact
About
2026 EXTREME Brazil Porto Alegre
2025 Winning The Mekel Prize
2025 EXTREME Lebanon
2025 Yasmeen Lari
2025 EXTREME Namibia
2024 EXTREME Ukraine
2024 EXTREME Turkey
2023 Ai Weiwei
2023 EXTREME Pakistan
2023 EXTREME Saba
2023 EXTREME Sint Maarten
2022 Shigeru Ban
2022 CARE Shelter Team workshop
2022 EXTREME CARE Azraq refugee camp
2022 EXTREME Sint Maarten
2021 EXTREME CARE Azraq refugee camp
2021 EXTREME Urban Heat Island
2020 EXTREME Congo
2020 EXTREME Sint Maarten
2019 EXTREME Sint Maarten
2018 EXTREME Hyperloop
2017 EXTREME Maldives
Contact
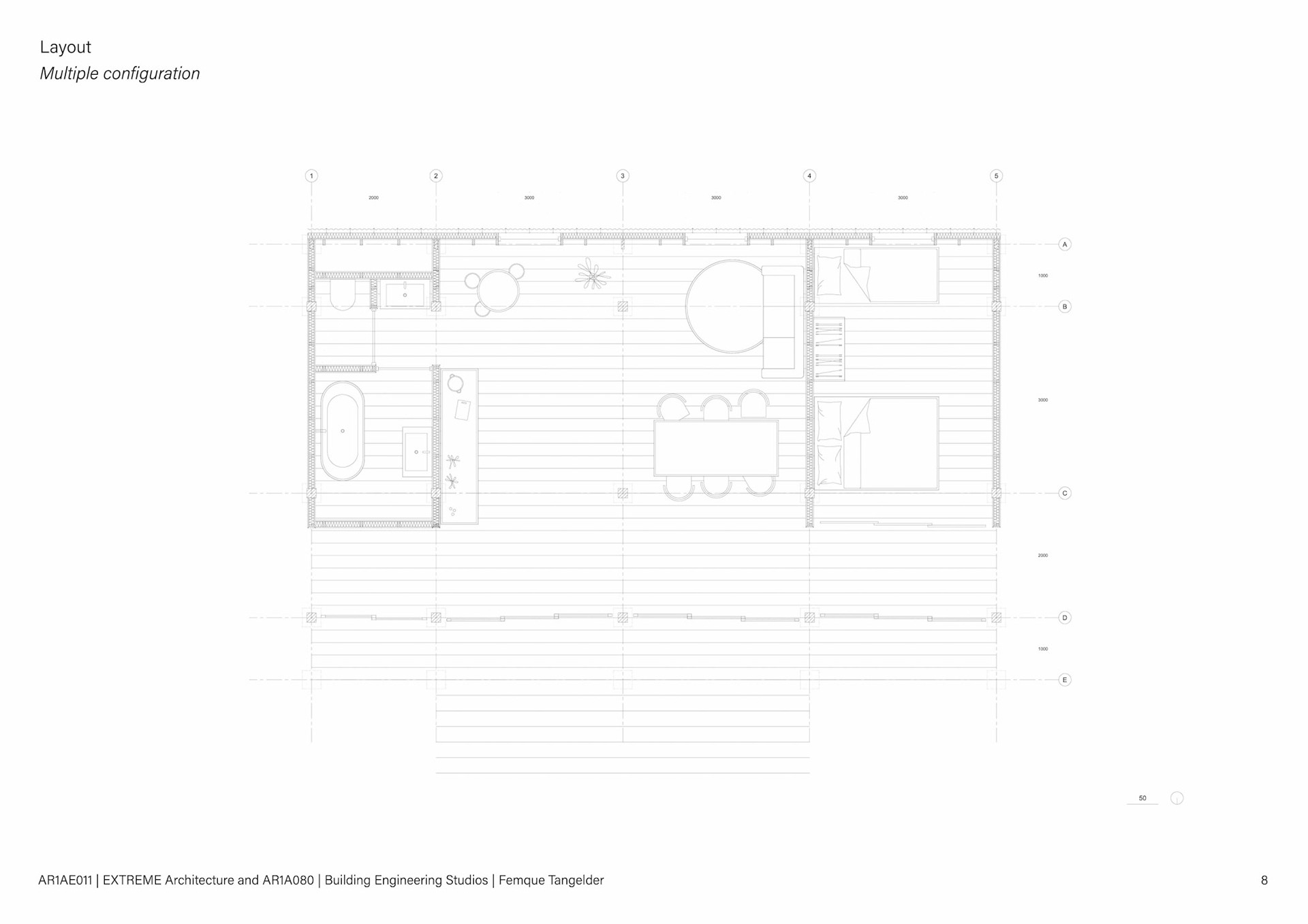
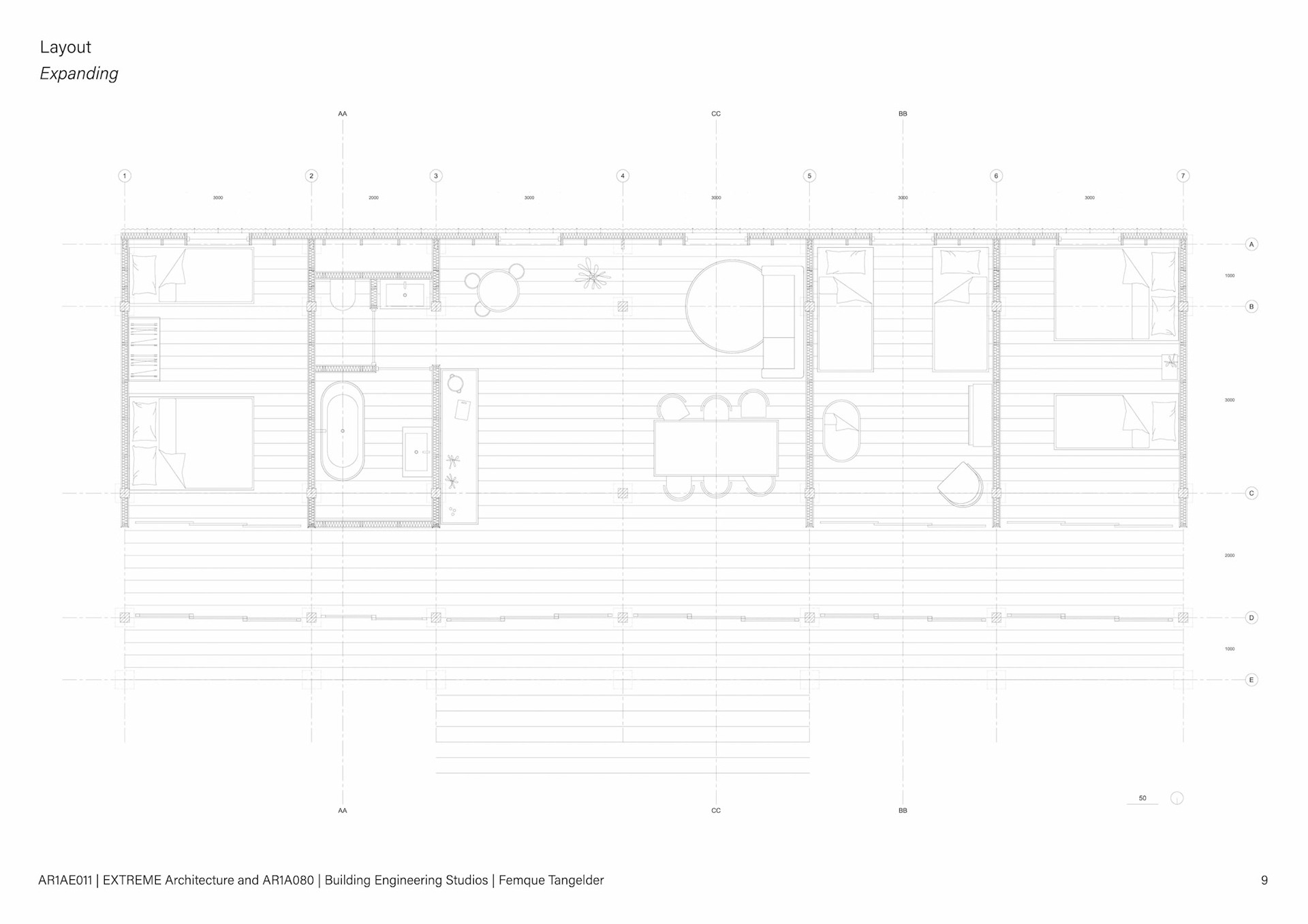
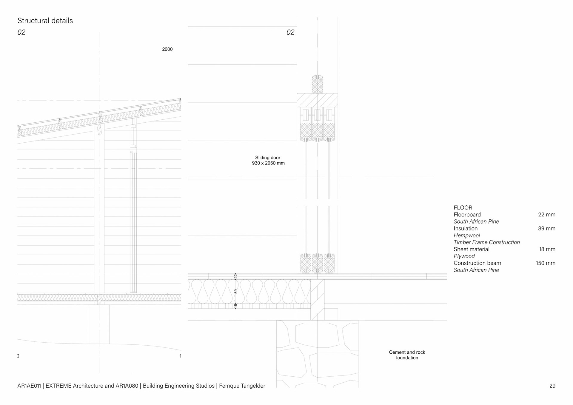
Lüderitz - Femque Tangelder
↑
Back to Top